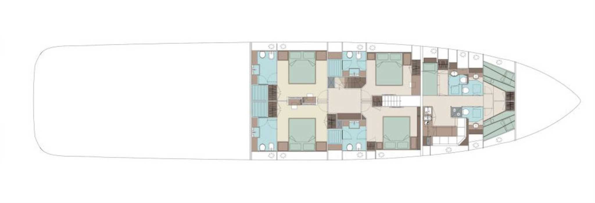
The Riva 110 ‚project, Riva’s new fiberglass flagship, is a promise of style, design and performance to reach levels never seen before. Through the collaboration between Officina Italiana Design, the studio founded by Mauro Micheli together with Sergio Beretta, the Ferretti Group Product Strategy Committee, and the Engineering Department, Riva 110‘ promises to be a magnificent and beautiful flybridge yacht, as well as larger than ever before. The completely renewed hull design measures almost 110 feet in overall length, with a beam larger than 11 feet. The exterior design further builds on the flowing lines of the 100′ Corsaro. Characterized by a super sporty profile, the Riva 110′ exhibits a large window in the hull with integrated porthole and, on deck, a long glass ceiling that stretches along the entire living room and it is formed by glass framed in stainless steel. The aft is equipped with the innovative Submersible Hatch, the exclusive movement system that Ferretti Group has patented, which has already convinced experts and triumphed during the Boat Builder Awards 2016 in Amsterdam.










