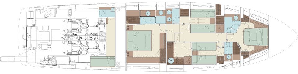
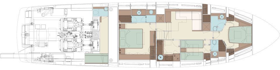
Heir to and evolution of the multiple award-winning 76’ Perseo, the best-loved Riva sport-fly of recent years proposes new aesthetic solutions combined with unprecedented functional design features, achieving excellence in terms of onboard liveability and performance.


































